jaime varon, abraham metta, alex metta /
Migdal arquitectos
About us
migdal
jaime varon
abraham metta
alex metta
proyects
recents
typology
chronology
list
awards
time line
publications
recents
chronology
contact
offices
general
vacancies
español
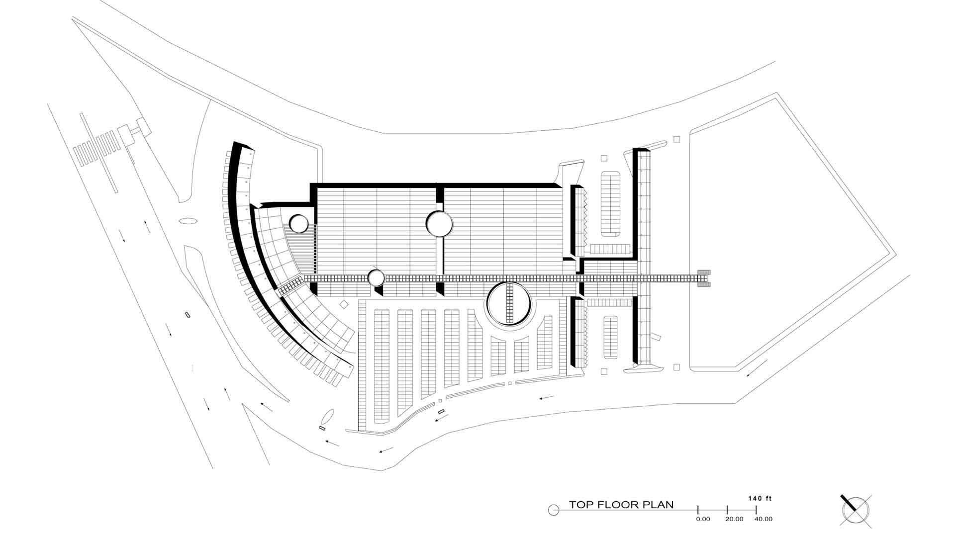
Proyect: tepotzotlan transport terminal
See information
tepotzotlan transport terminal
close project X
This terminal is a central spine layout with services including a commercial area with two key stores, a hotel for travelers, a food court, and an area for boarding and alighting from suburban transport services.